手动球阀

Q11F三片式高平台球阀
产品简介
News Center
新闻中心公称压力: PN 1.6,2.5,4.0,6.4MPa (1000WOG)、Class150、300
强度试验压力: PT2.4,3.8,6.0,9.6MPa
连接方式:内螺纹(G螺纹,NPT螺纹) 平焊接,承插焊接
低压气密封试验压力: 0.6MP
适用介质: Q61F-(16-64)C水,油品,气;
Q61F-(16-64)P硝酸类;
Q61F-(16-64)R醋酸,氧化性介质、尿素等多种介质
适用温度: -20~180℃
螺纹类型:G/ NPT/ BSPT/ BSP/ DIN/259/2999
产品材质: 碳钢、不锈钢、304、316、304L、316L
驱动方式:手动、电动、气动
应用于范围:化工、石化、石油、造纸、采矿、电力、液化气、食品、制药、给排水、市政、机械设备配套、电子工业,城建等领域
| 零件名称 | Q11F-(16-140)C | Q11F-(16-140)P | Q11F-(16-140)R |
| 阀体 | WCB | CF8 | CF8M |
| 阀盖 | WCB | CF8 | CF8M |
| 球体 | 304 | 304 | 316 |
| 阀杆 | 304 | 304 | 316 |
| 密封圈 | 聚四氟乙烯 (PTFE) | ||
| 填料 | 聚四氟乙烯 (PTFE) | ||

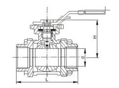
| DN | L | d | H | E |
| 15 | 67 | 15 | 72 | 145 |
| 20 | 78 | 20 | 75 | 145 |
| 25 | 87 | 25 | 80 | 166 |
| 32 | 108 | 32 | 83 | 166 |
| 40 | 114 | 38 | 103 | 206 |
| 50 | 139 | 48 | 110 | 206 |
在线留言